Powierzchnia: lokal po połączeniu: 129 m2
Stan początkowy: wykończony
Typ wnętrza: lokale mieszkalne w budynku wielorodzinnym
Zakres projektu: projekt budowlany połączenia 2 lokali mieszkalnych 
z adaptacją fragmentu korytarza + projekt wnętrz 
Rok realizacji: 2025
Autor: arch. Joanna Szybejko
Współpraca: arch. Maja Walaszczyk
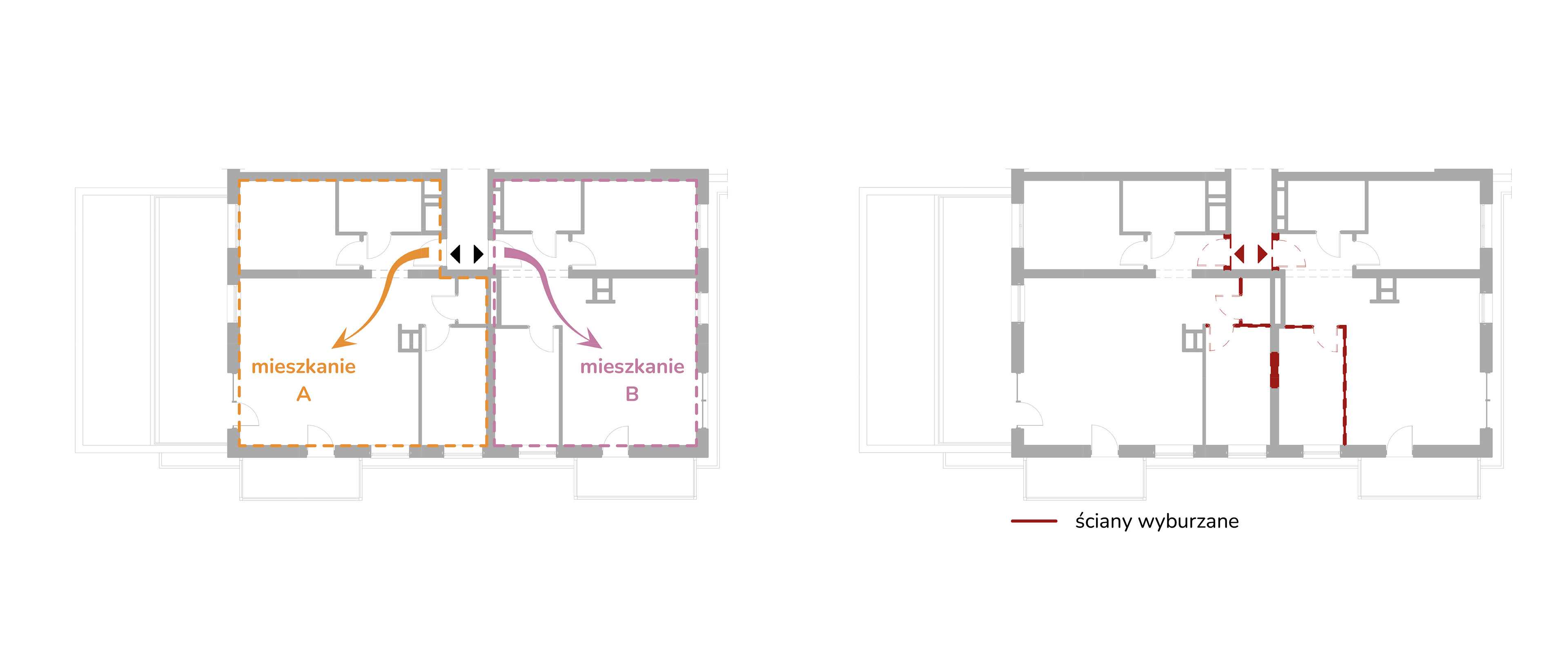
Przedmiotem realizacji była przebudowa dwóch sąsiadujących lokali mieszkalnych zlokalizowanych w nowoczesnym budynku na wrocławskim osiedlu Olimpia Port. Inwestycja zakładała połączenie ich w jeden funkcjonalny lokal o znacznie większej powierzchni użytkowej, odpowiadający potrzebom inwestora. Projekt, ze względu na adaptację fragmentu wspólnego korytarza, wymagał uzyskania zgody wspólnoty mieszkaniowej oraz pozwolenia na budowę.

Najważniejszym wyzwaniem projektowym było opracowanie nowego, ergonomicznego układu funkcjonalnego, który w pełni wykorzysta potencjał połączonej przestrzeni. Kuchnia oraz obie łazienki pozostały w swoich pierwotnych lokalizacjach, natomiast jedna z łazienek została poddana pełnej metamorfozie aranżacyjnej.
Powierzchnia mieszkania została powiększona o szereg dodatkowych pomieszczeń, które podnoszą komfort codziennego użytkowania. Wydzielono strefę wejściową z wygodnym siedziskiem, prywatne biuro, garderobę, pralnię z suszarnią, kompaktową domową siłownię i miejsca do przechowywania. Dużym atutem projektu jest układ komunikacji o charakterze obiegowym – korytarz okalający centralnie usytuowaną „wyspę” z pralnią umożliwia swobodne przemieszczanie się między poszczególnymi strefami mieszkania.

Układ funkcjonalny strefy dziennej został przeprojektowany tak, aby zwiększyć przestronność i komfort użytkowania. W części jadalnej zastosowano rozkładany stół, który pozwala na powiększenie przestrzeni podczas spotkań z gośćmi, zachowując jednocześnie wygodę codziennego korzystania.
Aranżacja wnętrza została opracowana jako rozwinięcie istniejącej estetyki kuchni i łazienki, które pozostały w pierwotnym układzie i stylu. Zastosowane materiały wykończeniowe oraz kolorystyka nawiązują do zastanych elementów – dominują odcienie szarości, struktury inspirowane betonem i proste formy. Nowe rozwiązania zostały dobrane tak, aby harmonijnie uzupełniały charakter pierwotnej zabudowy, tworząc spójną całość.

Efektem realizacji jest funkcjonalne i wielowymiarowe wnętrze o wyraźnie zdefiniowanych strefach, które odpowiada współczesnemu stylowi życia i indywidualnym oczekiwaniom inwestora.

Zobacz również