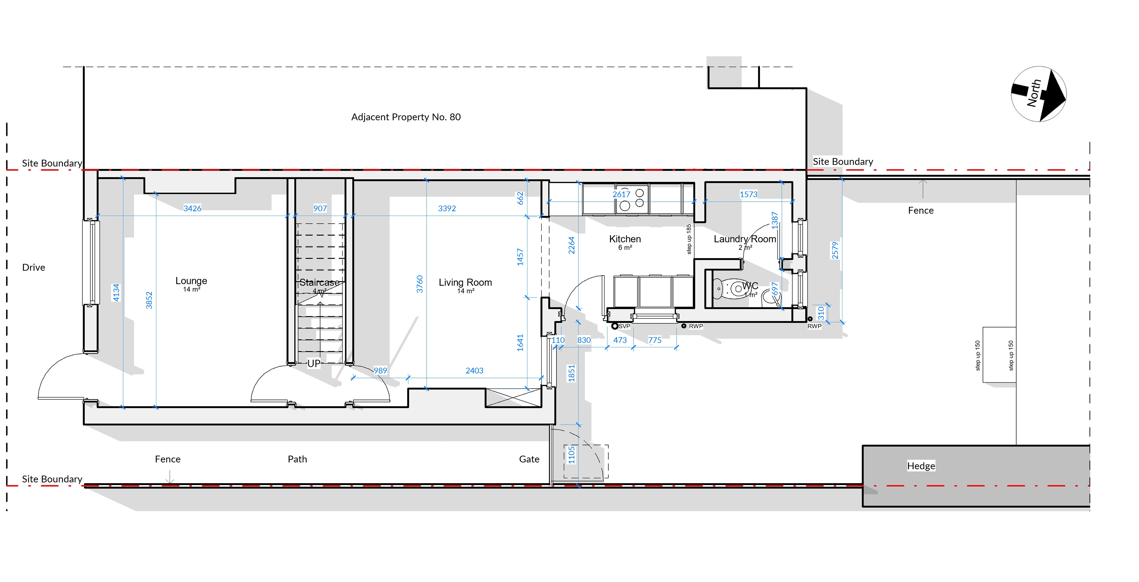
Projekt koncepcyjny, który badający możliwość rozbudowy domu jednorodzinnego w zabudowie bliźniaczej w Derby w Anglii. Projekt koncentruje się na ulepszeniu istniejącego układu funkcjonalnego poprzez dodanie jasnej, przestronnej kuchni z jadalnią oraz poprawę dostępu do ogrodu. Koncepcja przekształca tradycyjny brytyjski dom bliźniaczy, oferując świeże, nowoczesne podejście do klasycznego układu.
before:
after:

Zobacz również