Nazwa / rodzaj inwestycji: Nowoprojektowany obiekt hotelowy / pensjonat
Powierzchnia działki: 2001 m2
Powierzchnia użytkowa: 1033 m2
Zakres projektu: Projekt Koncepcyjny
Data projektu: 2024
Autor / Zespół: arch. Joanna Szybejko
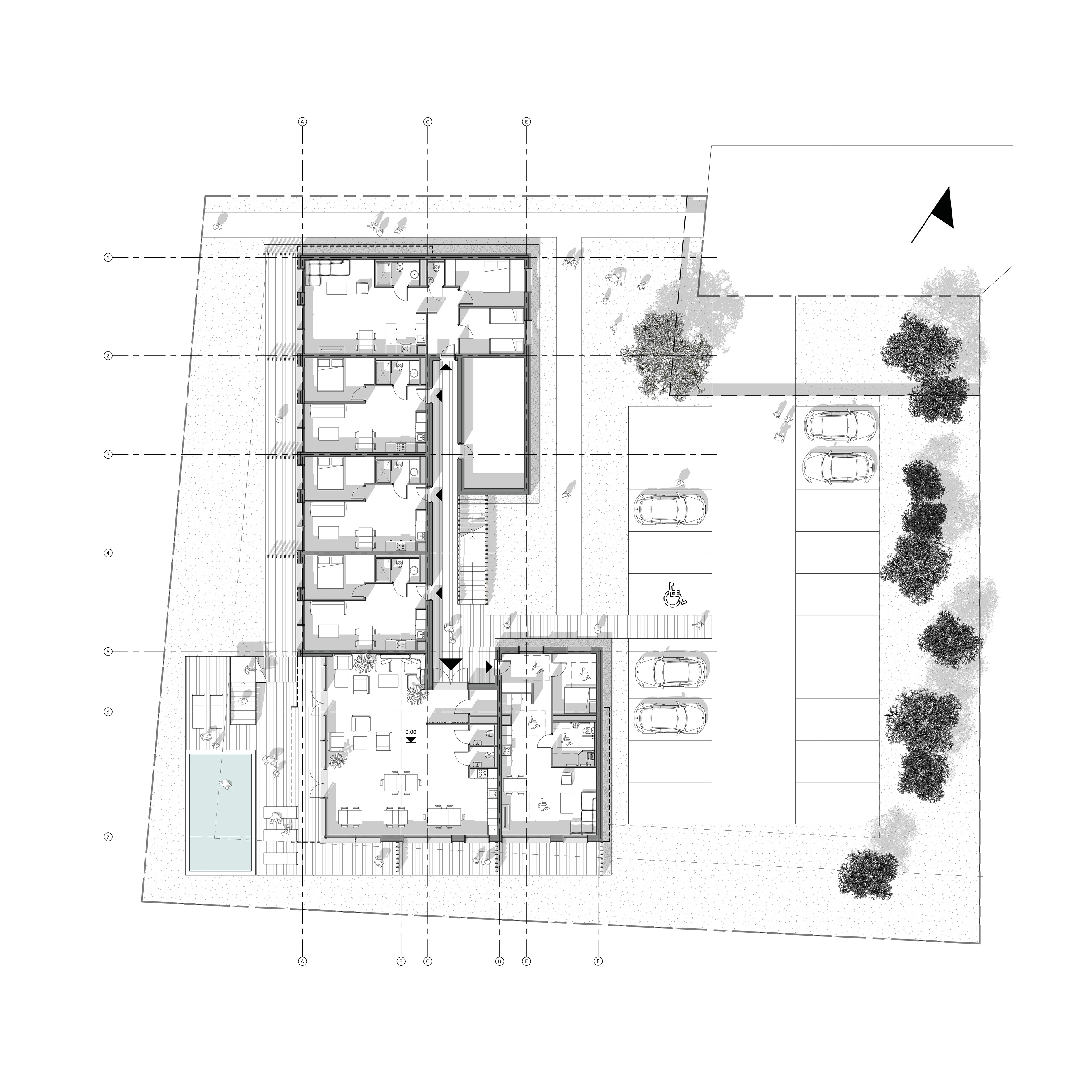
Projekt zakłada stworzenie funkcjonalnego obiektu hotelowego. Układ funkcjonalny terenu przewiduje północną część na parking oraz południową – w pełni wykorzystaną do celów rekreacyjnych z basenem i tarasami.
Kompleks składa się z dwóch brył budynków, obejmujących łącznie 19 apartamentów: 
15 o powierzchni ok. 45 m², 2 o powierzchni ok. 60 m² oraz 2 o powierzchni ok. 70 m². Każdy apartament posiada prywatny taras lub balkon. Dodatkowo przewidziano taras wspólny z basenem do użytku mieszkańców. Program obiektu uzupełniają przestrzenie techniczne i strefy wspólne.

Projekt łączy racjonalne zagospodarowanie przestrzeni z wysokim standardem funkcjonalnym. Priorytetem jest maksymalizacja liczby dobrze nasłonecznionych apartamentów, atrakcyjne rozwiązania rekreacyjne oraz optymalne rozdzielenie funkcji użytkowych działki. Inwestycja stanowi propozycję stworzenia nowoczesnego obiektu apartamentowego o charakterze hotelowym, odpowiadającego na potrzeby rynku i wymagania przyszłych użytkowników.

Zobacz również