co robimy
kim jesteśmy
architektura
wnętrza
aktualności
kontakt
| ENG
co robimy
kim jesteśmy
architektura
wnętrza
aktualności
kontakt
| ENG
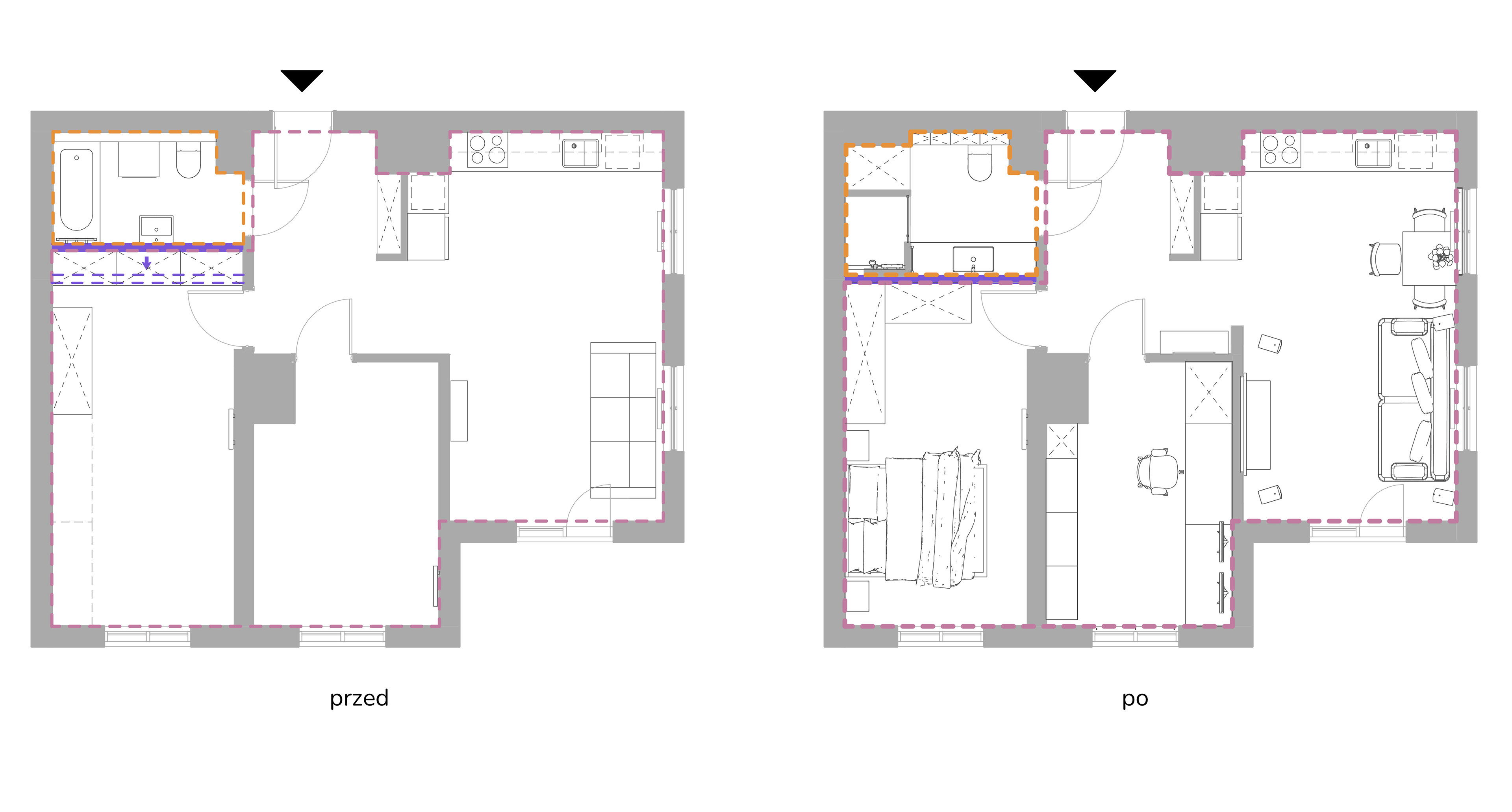
Odświeżenie mieszkania dla Singla
Kraków | 2024
Zobacz również
Remont kuchni
Warszawa | 2021
Mieszkanie dla Singielki
Międzynarodowa | Warszawa | 2017
Łazienka w kamienicy
Sępolno | Wrocław | 2021
Mieszkanie w Kamienicy
Wielka Wyspa | Wrocław | 2024
Mieszkanie w Wielkiej Płycie
Wrocław | Śródmieście | 2021
Połączenie dwóch mieszkań
Olimpia Port | Wrocław | 2025
Łazienka w domu jednorodzinnym
Stabłowice | Wrocław | 2021
Dom pod lasem
Wawer | Warszawa | 2025
Mieszkanie dla pary
Księże Małe | Wrocław | 2020
Apartament pod wynajem
Bartoszowice | Wrocław | 2023